LEASED PENDING PAYMENT

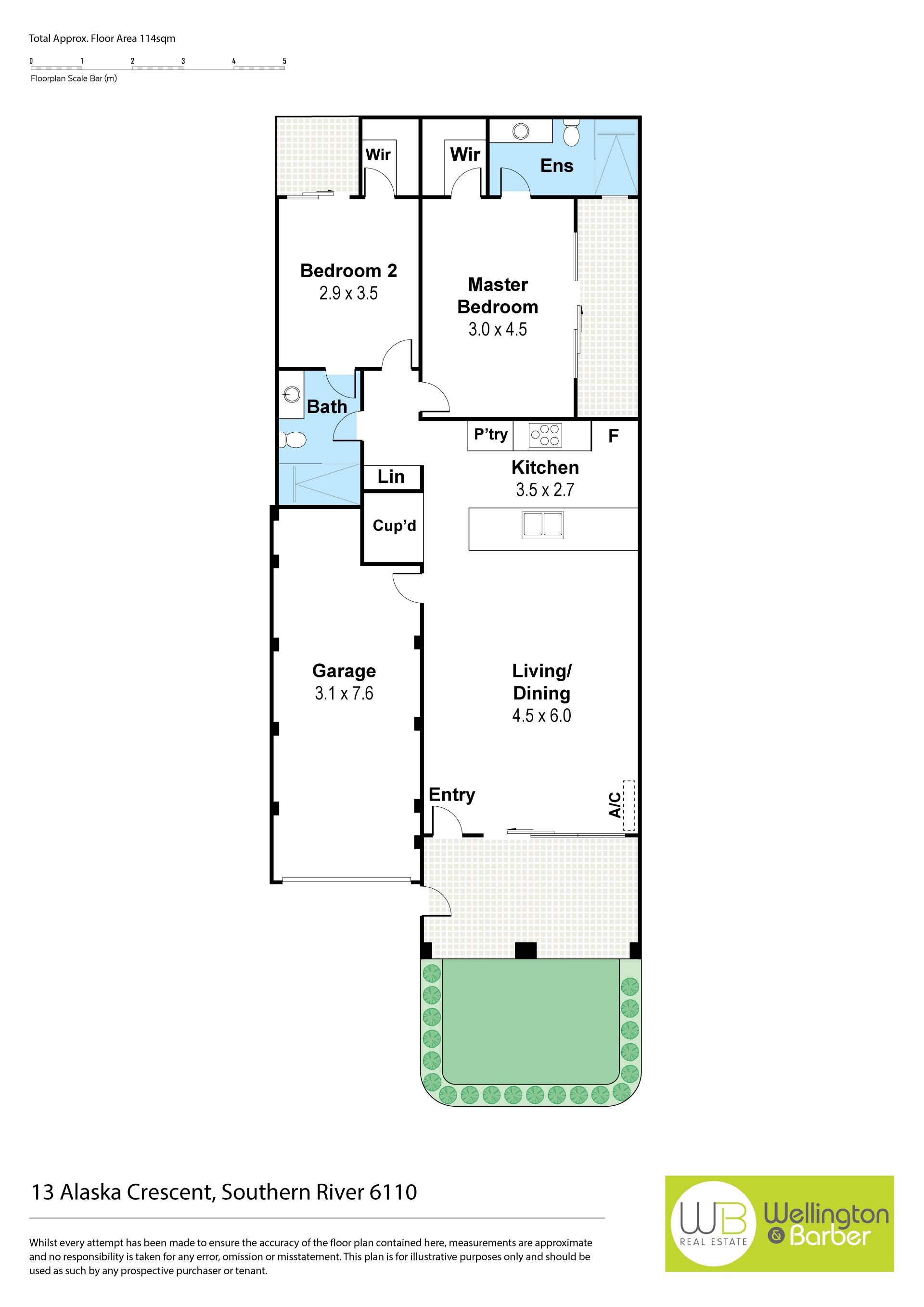
Absolutely gorgeous 2 bedroom 2 bathroom villa in excellent condition is available on 19th March 2021

Some features are:

- Stone bench top to kitchen

- 900mm oven

- Split system air-conditioning to main living area

- Gas instantaneous hot water unit

- Automatic sectional garage door

- Own driveway access

- Reticulated lawns and garden

 

Very conveniently located walking distance to The Vale Shopping Centre, Brooklands Tavern, Aldi, Dome, restaurants and Roar Fitness 24/7.

No pets permitted

2 2 1
Available Leased
Address 13B Alaska Cres, Southern River
Price $350 per week
Property Type Rental
Property ID 787
Category House

Agent Details

Kristen Rowe photo

Kristen Rowe

08 9455 6588
View Profile